価格6,580万円
2SLDK
所在:府中市本宿町2丁目
交通:京王線・南武線分倍河原徒歩14分 南武線西府徒歩6分
土 地
102.37㎡(30.97坪)
建 物
80.13㎡(24.24坪)
建ぺい率
60%
容積率
160%
構 造
木造2階建て
築 年
2026年01月
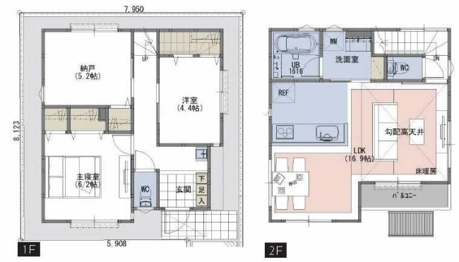
間取り
2SLDK
駐車場
有り
用 途
第1種中高層地域
接 道
一方
東南4M道路
現 況
空家
引 渡
相談






設 備
公営水道、公共下水、東京電力、都市ガス
仕 様
備 考
周辺状況



