価格6,890万円
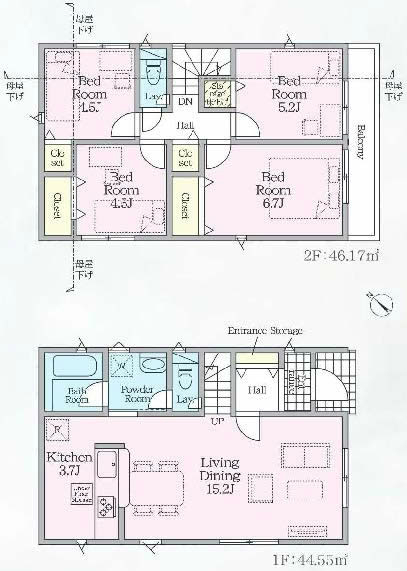
4LDK
所在:府中市本宿町1丁目
交通:南武線西府徒歩8分
新築分譲全4棟。
土 地
116.05㎡(35.11坪)
建 物
90.72㎡(27.44坪)
建ぺい率
40%
容積率
80%
構 造
木造2階建て
築 年
2026年05月
間取り
4LDK
駐車場
有り
用 途
第1種低層住居地域
接 道
一方
東南4M道路
現 況
未完成
引 渡
相談






設 備
公営水道、公共下水、東京電力、都市ガス
仕 様
備 考
周辺状況



