価格1,200万円
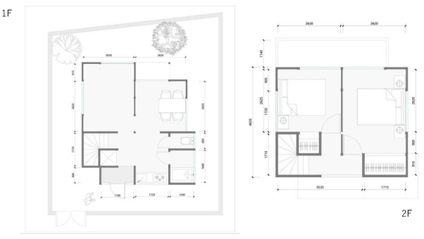
3LDK
所在:府中市南町3丁目
new
交通:京王線中河原徒歩12分
建築基準法上の道路に接道していないため再建築不可。
土 地
91.23㎡(27.60坪)
建 物
57.41㎡(17.37坪)
建ぺい率
40%
容積率
80%
構 造
木造2階建て
築 年
1973年06月
間取り
3LDK
駐車場
無し
用 途
第1種低層住居地域
接 道
一方
4M道路
現 況
空家
引 渡
相談






設 備
公営水道、公共下水、東京電力
仕 様
備 考
周辺状況



