価格4,000万円
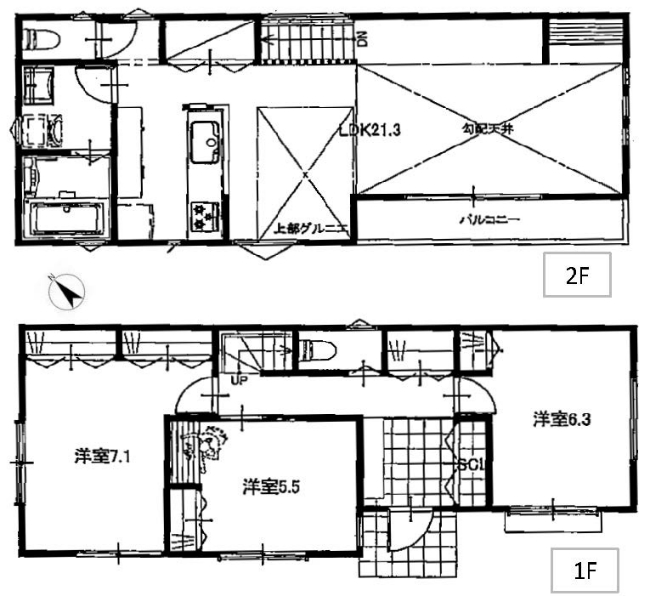
3LDK
所在:府中市住吉町3丁目
交通:京王線中河原徒歩11分
土 地
117.74㎡(35.62坪)
建 物
93.42㎡(28.26坪)
建ぺい率
40%
容積率
80%
構 造
木造2階建て
築 年
2016年03月
間取り
3LDK
駐車場
有り
用 途
第1種低層住居地域
接 道
一方
東南5M道路
現 況
居住中
引 渡
相談






設 備
公営水道、公共下水、東京電力、都市ガス
仕 様
備 考
周辺状況



