価格6,680万円
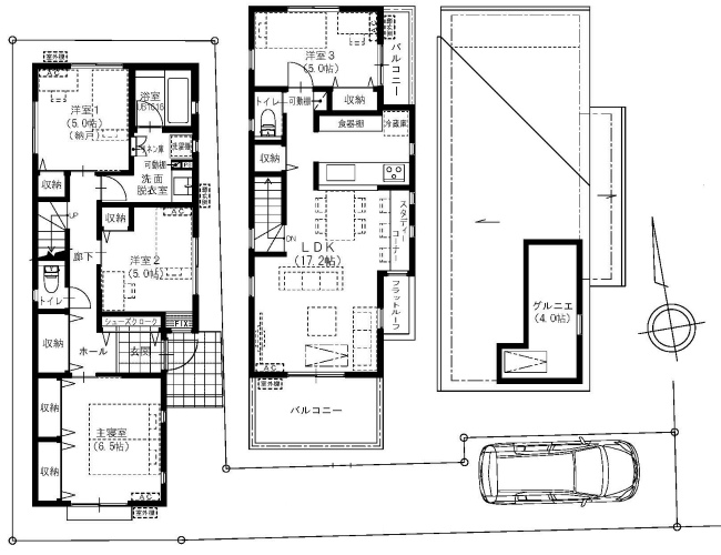
4SLDK
所在:府中市美好町3丁目
交通:京王線・南武線分倍河原徒歩9分 南武線西府徒歩9分
開発土地分譲全4区画。 建ぺい率60% 容積率200%。
土 地
114.37㎡(34.60坪)
建 物
94.19㎡(28.49坪)
建ぺい率
60%
容積率
200%
構 造
木造2階建て
築 年
間取り
4SLDK
駐車場
有り
用 途
第2中高層住居地域
接 道
一方
東南4.5M道路
現 況
未完成
引 渡
相談






設 備
公営水道、公共下水、東京電力、都市ガス
仕 様
備 考
10多東開開許可第186号
周辺状況



